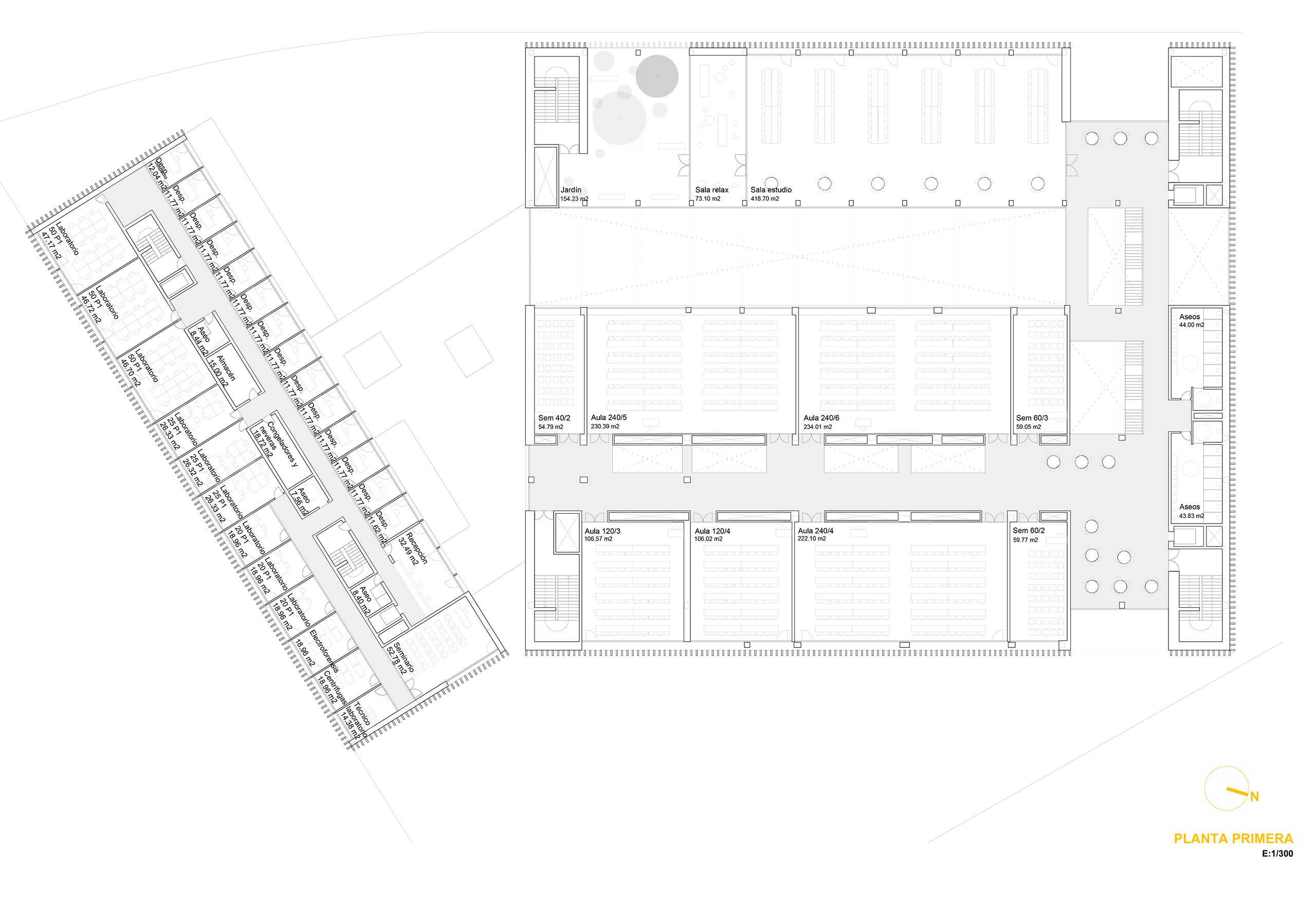
Concurso para Facultad de Medicina de Zaragoza

Convocado por

Gobierno de Aragón

Fecha

2024

Arquitectos Matos Castillo Arquitectos (Alberto M. Castillo, Beatriz Matos) + Néstor Montenegro Colaboradores Jaime Rodríguez-Vigil Zaballa, Belén Álvarez García, Lucas Paniagua

Arquitectos Matos Castillo Arquitectos (Alberto M. Castillo, Beatriz Matos) + Néstor Montenegro Colaboradores Jaime Rodríguez-Vigil Zaballa, Belén Álvarez García, Lucas Paniagua