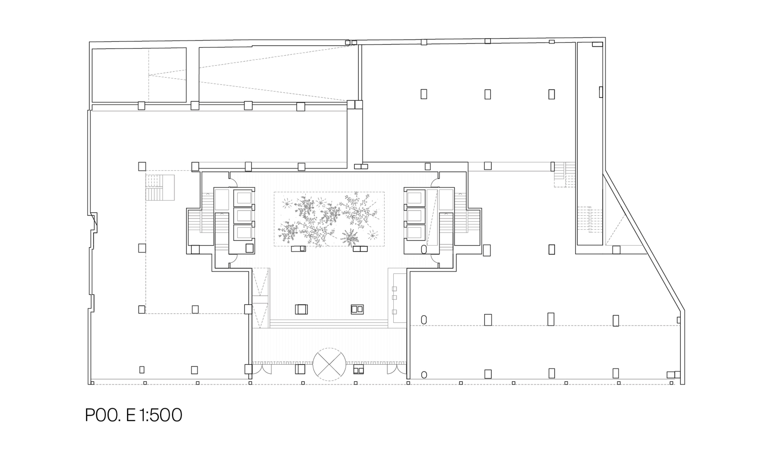
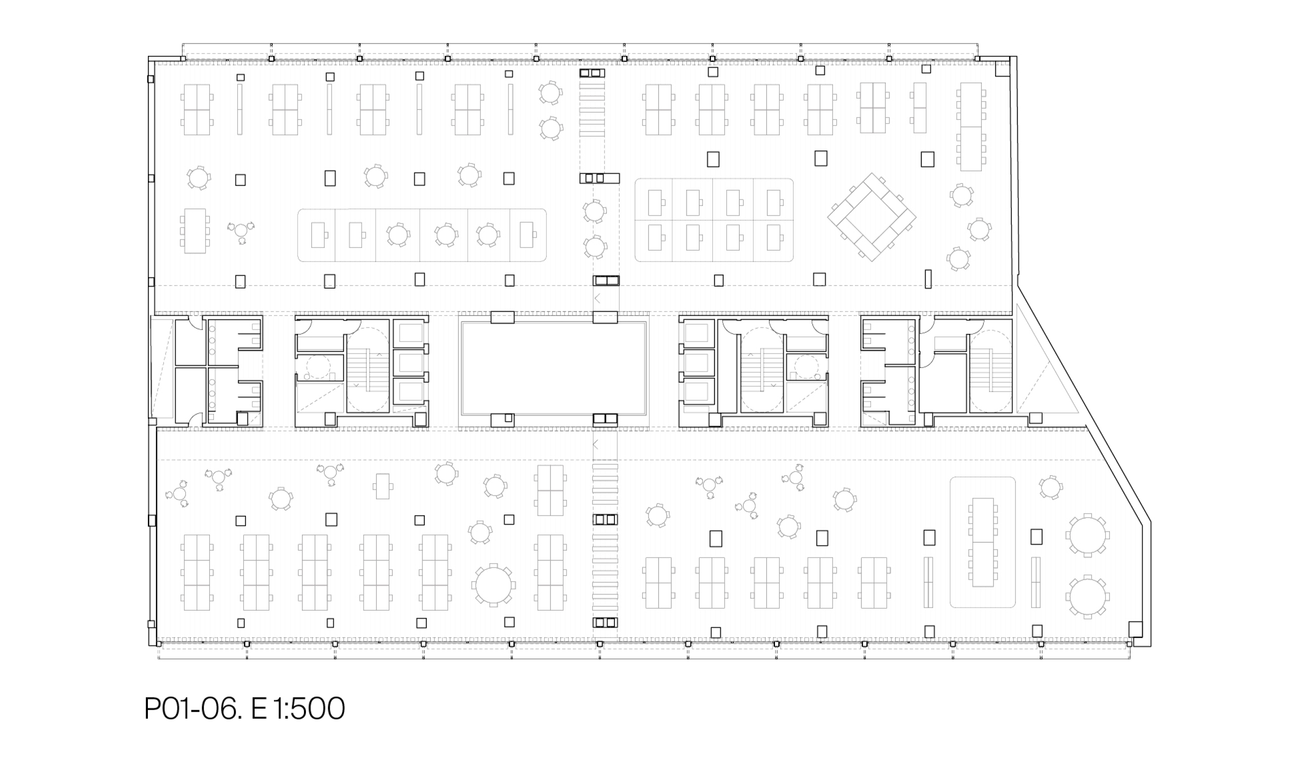
Concurso para la rehabilitación de los edificios en Paseo de la Castellana nº106 y nº108, Madrid

Concurso

Finalista

Convocado por

Consorcio de Compensación de Seguros

Fecha

2024

Arquitectos Matos Castillo Arquitectos (Alberto M. Castillo, Beatriz Matos) + Frade Arquitectos + RuedaPizarro Arquitectos Colaboradores Jaime Rodríguez-Vigil Infografías BSArq

Arquitectos Matos Castillo Arquitectos (Alberto M. Castillo, Beatriz Matos) + Frade Arquitectos + RuedaPizarro Arquitectos Colaboradores Jaime Rodríguez-Vigil Infografías BSArq